







Va recomandam spre inchiriere un apartament cu 2 camere, semidecomandat , situat in cartierul Borhanci, zona str. borhanciului, in apropierea mijloacelor de transport in comun.
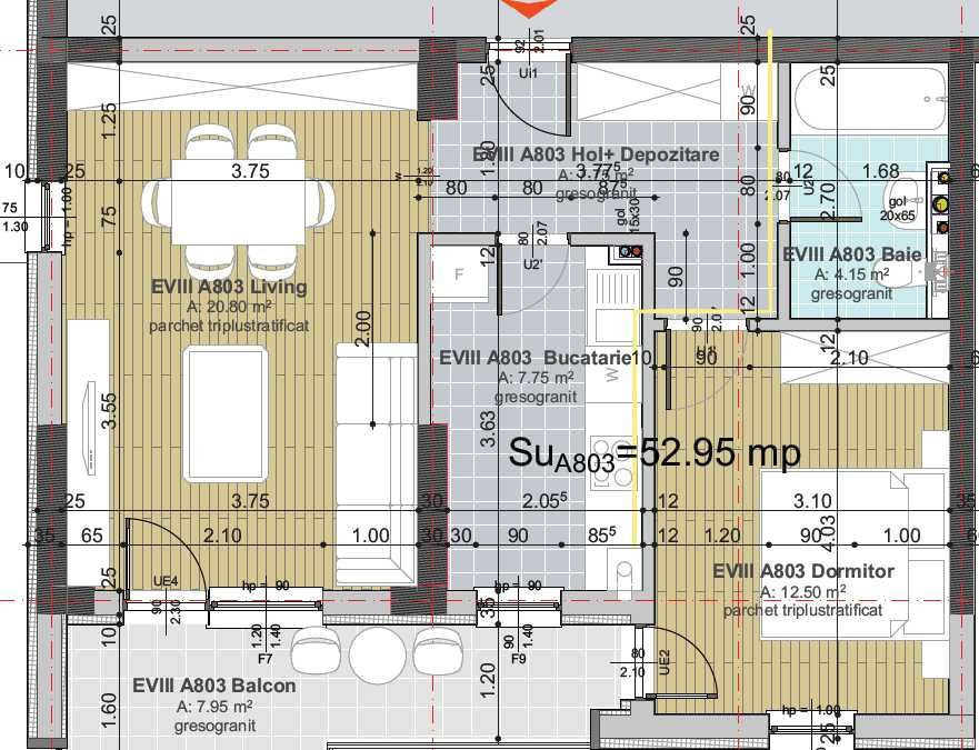
Locuinta este situata la etajul 8, al unui imobil cu 8 nivele si dispune de o suprafata utila de 52 mp.+ o terasa cu priveliste superba
Dispune de loc de parcare contra cost optional. 50 euro. sua la liber in jurul blocului.
Apartamentul este finisat modern si complet mobilat/utilat, compartimentat astfel: 1 dormitor, living, bucatarie separata, 1 baie hol si terasa.
Complet mobilat/Utilat, Incalzirea se face prin centrala proprie , ferestrele sunt de tip termopan cu profil PVC.
Costuriile de intretinere sunt reduse.
Ideal pentru o persoana familie sau cuplu.