

















Va propunem spre achizitie un apartament cu 3 camere, semidecomandat , situat in cartierul Centru, zona str.Traian, in apropierea puctelor de interes ale orasului.
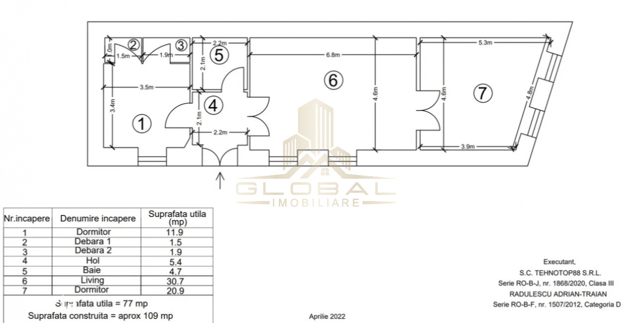
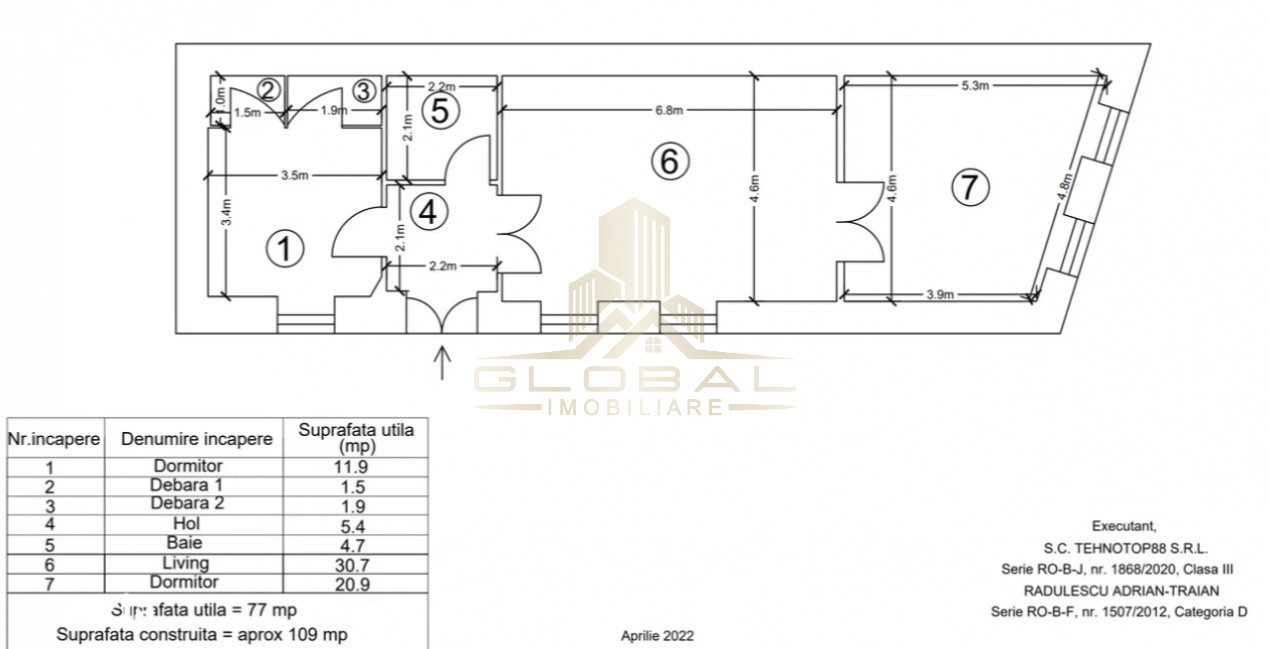
Locuinta este situata la etajul P, al unui imobil cu 2 nivele si dispune de o suprafata utila de 77 mp .
Apartamentul este ultrafinisat modern si complet mobilat/utilat de lux, compartimentat astfel: 2 dormitoare, living cu bucatarie, 1 baie, hol.
Beneficiaza de centrala proprie , ferestrele sunt de tip termopan cu profil PVC.
Costuriile de intretinere sunt reduse.
Ideal pentru locuit sau investitie.